基于碳纤维材料的太阳能空气源热泵室外机除霜装置的研究
2019年06月05日 10:49         所属学院: []          点击:


湖南省大学生研究性学习和创新性实验计划

项  目  申  报 

 

项目名称: 

  • 如果您无法在线浏览此 PDF 文件,则可以

  • 下载免费小巧的 福昕(Foxit) PDF 阅读器,安装后即可在线浏览  或

  • 下载免费的 Adobe Reader PDF 阅读器,安装后即可在线浏览  或

  • 下载此 PDF 文件

学校名称

伟德betvlctor1946源于英国

学生姓名

学  号

专      业

性 别

入 学 年 份

贺晨波

201526060314

建筑环境与能源应用工程

2015

张末

201526060111

建筑环境与能源应用工程

2015

杨归

201526060208

建筑环境与能源应用工程

2015

李宇同

201526060214

建筑环境与能源应用工程

2015

指导教师

傅俊萍

职称

教授

项目所属

一级学科

动力工程及工程热物理

项目科类(理科/文科)

理科

学生曾经参与科研的情况

贺晨波 获得    

全国大学生节能减排科技与社会实践竞赛国家二等奖

美国大学生数学建模竞赛(MCM/ICM)Honorable Mention奖

全国大学生数学建模竞赛湖南赛区一等奖

全国大学生英语竞赛国家三等奖

挑战杯”全国大学生课外学术科技作品竞赛校内选拔赛三等奖

互联网+大学生创新创业大赛校内选拔赛三等奖

张末 获得  

全国大学生英语竞赛国家一等奖

指导教师承担科研课题情况

1、太阳能诱导自然通风在建筑中的应用研究.湖南省建设厅科技项目.(项目主持人)

2、地源热泵埋管高效换热技术研究.湖南省科技厅计划项目.(项目主持人)

3、直联炉罩式(36.5+6.5)t/h余热锅炉CFD数值模拟及软件开发. 中冶长天责任有限公司(项目主持人)

4、长沙市新能源与可再生能源利用服务平台及监管体系的研究与建设.长沙市能源局 (热泵技术研究中心项目主持人)

项目研究和实验的目的、内容和要解决的主要问题

1、研究目的

空气源热泵在冬季制热工况下运行时,蒸发器将从室外空气中吸收热量,当其表面的空气温度低至0℃时会出现结霜现象,蒸发器表面结霜会使其传热效率降低并使运行时的能耗增高,因此需要除霜装置除去霜层以提高空气源热泵的性能。但是传统的空气源热泵室外机除霜装置存在耗能量高、制造难度大、可靠性低等问题,而本研究项目致力于设计一种节能环保、安装容易安全可靠的空气源热泵室外机除霜装置。

2、研究的内容

本项目旨在研究一种碳纤维电热膜的太阳能空气源热泵除霜装置,此装置利用太阳能光伏电池发电,并将电能储存至蓄电池中以保证供电的可靠性,并利用单片机设计的控制系统来协调各个部件的运行工作,当蒸发器表面结霜时,铺设在空气源热泵室外机翅片换热器上的碳纤维电热膜开始工作,将蓄电池中的电能转化为热能,从而达到除霜的效果。

本项目的主要研究内容为

1)通过理论分析和研究在不同室内外环境下,空气源热泵冷凝器的结霜特点,并确定除霜所需热量,同时考虑热电转换效率,以确定太阳能板的尺寸和蓄电池的容量;

2)通过实验,研究碳纤维加热膜除霜传热和传热性能以确定其在蒸发器上的最佳安装方式;

3)研究并设计利用太阳能和碳纤维除霜系统和装置,并通过实验不断调整设计方案,使此控制系统装置最终达到预期的效果

3、要解决的主要问题

1)确定太阳能板的尺寸和蓄电池的容量;

2)要解决碳纤维与冷凝器的安装问题,以达到高效传热的目的

(3)确定利用碳纤维和太阳能的除霜方案

(4)根据研究结果,设计一种“基于碳纤维材料的太阳能空气源热泵室外机

霜装置”的系统和控制方案。

国内外研究现状和发展动态

 经参考文献,现在国内外研究的空气源热泵室外机除霜方法有如下几种:

1、热力除霜法

1)电热除霜法

直接利用电能产生热能进行除霜,该方法把电阻式加热元器件安装在室外翅片管换热器上,一般适用于小型家用空调器;电加热元器件有三种布置方式:一是电加热器件放置在换热器端部。二是将电加热管与换热工质管间隔布置做成一体化结构。三是将电加热管放置在换热工质管中。

电热除霜法可靠性高,除霜系统与制热系统相对独立,除霜能力不受机组制性能和运行环境的限制。但其缺点也显而易见,耗电量大,且仅有15%~25%的能量被用于融霜。该方法在早期的小型热泵上使用较多,目前在实际中已较少应用,但仍可作为辅助除霜方法出现,以保证机组在恶劣环境条件下能正常使用。

(2)热气除霜法

逆循环除霜

通过四通换向阀的切换改变制冷剂的流向,使蒸发器和冷凝器的作用交换,制冷剂在管内的放热使霜层融化;其融霜热量的主要来源是室内空气和压缩机做功。逆循环除霜虽然能有效地进行除霜,但是其除霜时需要从室内吸取热量,在除霜完毕切换回制热模式后长时间无法供热,造成室内环境温度波动比较大,从而导致热舒适性比较差。另外且四通换向阀切换时噪音较大,会对系统的管路和设备造成一定的冲击,影响机组的使用寿命和可靠性。

热气旁通除霜

热气旁通除霜法是将在压缩机排气管和室外翅片管换热器入口管路间增加一个旁通管路。除霜时,打开旁通电磁阀,直接将压缩机的高温排气直接引入到室外换热器中,通过压缩机排气的热量将室外换热器的霜层融化,其融霜的热量来源于压缩机耗功和压缩机壳体的蓄热。

    与逆循环除霜相比,热气旁通除霜具有很多优点:除霜过程中房间温度波动小,约是逆循环除霜的1/53/10,热舒适性较好;除霜过程和切换时,系统压力变化平稳,造成的机械冲击比较小;室内换热器的表面温度基本未下降,恢复制热后马上吹出热风;启动和终止除霜时,不会产生四通阀换向的气流噪声等。

蓄能除霜法

将具有合适融化温度的材料蓄能罐与空气源热泵机组相连接,利用蓄热装置的特性将除霜工作中产生的热损失补偿回来。当空气源热泵处于供热运行状态时,机组会持续向空调系统提供热源,同时也会向蓄热装置提供热源,而当空气源热泵切换至除霜工作模式时,蓄热装置会在短时间内迅速向室内释放热量,同时还会为除霜系统提供充足的热量以融化室外换热器上的凝霜。

同逆循环除霜相比,蓄能除霜系统的除霜时间大幅减小,而且在除霜时系统的吸排压力明显高于逆循环除霜系统,有效避免了系统由于低压保护而停机。在保证室内送风温度的同时还有小缩减了除霜系统工作的时间,降低了机组除霜的频率并极大的提高了除霜的工作效率,有效解决了空气源热泵冬季结霜的问题,且在一定程度上减少了除霜系统在工作过程中的能源消耗。

2、非热力除霜法

(1)高压电场除霜法

主要是利用霜晶在电场中受力后的不稳定性来完成除霜的;在电场的作用下,电极间的气体会发生微放电现象,由此产生的电荷将被运输到霜晶表面上积累起来,积累的电荷将建立一个与外加电场方向相反的电场,使得霜晶所受电场力总是使其具有离开冷表面的不稳定性。由于霜晶破碎具有某一固有频率,这一频率与霜晶的形状、高度有直接的关系。因此,当施加的交流电场频率等于或接近霜晶不稳定频率时,霜晶就会破碎掉落,离开冷表面,从而达到除霜的目的。

虽然交流高压电除霜法效率提升很大,但目前此项研究仅限于实验室内,应用于空气源热泵冷热水机组时,高压放电设备的功率问题,电极材料的绝缘性问题、制热除霜的匹配控制问题以及除霜不尽等问题仍需进一步研究。

(2)超声波除霜法

主要是利用霜晶体和超声波的共振效应完成的。翅片管蒸发器在高频受迫振动下,其结霜部位激发的剪切应力值远大于结霜的粘附应力,并且在霜晶根部激发的弯矩可将部分霜晶体从根部折断。

超声波除霜能耗是传统逆循环除霜技术能耗的1/88~1/22,除霜效率是逆循环除霜效率的7~29倍,系统的COP提高6.51~15.33%。虽然超声波除霜技术可以大大降低除霜能耗,但由于空气源热泵在结霜时,通过会经过以下过程:冷凝水滴→冰层→霜晶→霜枝→霜层,所以在热泵翅片管换热器表面形成的霜层其根部通过存在一层薄的基冰层。因此不能完全除尽霜层。

参考文献

[1] 李玲,王景刚,鲍玲玲,等.空气源热泵除霜研究新进展[J].节能, 2017, (1): 73-76

[2] 曲明璐,余倩,李封澍,等.空气源热泵除霜问题的研究现状及进展[J].建筑节能, 2016, (8): 1-5

[3] 孙家正.空气源热泵除霜方法的研究现状及展望[J].建筑热能通风空调, 2017, 36(8): 43-46

[4] 闫丽红,王景刚,鲍玲玲,等.低温空气源热泵研究新进展[J].建筑节能,2016,(8):2224.

[5] Minglu Qu, Liang Xia, Shirring Deng, etal. An experimental investigation on reverse-cycle defrosting performance for an air source heat pump using an electronic expansion valve[J].AppliedEnergy, 2012(97): 327-333.

[6] 赖想球,张桃.热气旁通除霜在变频热泵空调机的应用研究[J].制冷与空调,2017,17(06):24-27

[7] 杨超,苏余昌,迟婷,等.空气源热泵相变蓄能除霜方式的实验研究[J].山西建筑,2014,40(12):140-142.

[8] Haihui Tan, Guanghua Xu, Tangfei Tao. Investigation on the Ultrasonic propagation mechanism and its application on air source heat pump defrosting[J].Applied Thermal Engineering,2016,107: 479-492.

[9] Haihui Tan, Guanghua Xua, Tangfei Tao. Experimental investigation on the defrosting performance of a finned tube evaporator using intermittent ultrasonic vibration[J].Applied Energy, 2015,158: 2200232.

[10] 李宁,石文星,王宝龙,等.广义空气源热泵制热/除霜周期的性能模型[J].制冷学报,2015,(2):1-7.

[11] 郭宪民.空气源热泵结霜问题的研究现状及进展[J].制冷与空调,2009,(2):16.

本项目学生有关的研究积累和已取得的成绩

1、有关的研究积累

1)发现采用太阳能供电的方式相比较采用其他能源更加节能、环保,并且太阳能板在发电过程中不会对空气源热泵的散热情况产生影响,从而影响空气源热泵的性能;

2)发现采用碳纤维电热膜除霜效果相比较其他电加热材料更加显著,不会对空气源热泵室外机翅片管的散热性能产生影响,并且布置更加简单。

2、已取得的成绩

已申请实用新型专利一项“一种新型空气源热泵室外机除霜装置

项目的创新点和特色

1、利用了碳纤维电热膜除霜进行除霜因为碳纤维材料具有良好的热电转换性、抗腐蚀性、导热性等,在提了系统的简易程度的同时,也不会对夏季空调使用时的散热产生较大影响;

2、利用了太阳能光伏电池板进行光电转换获取电能,并设蓄电装置,保证空气源热泵室外机除霜装置在工作条件下有足够的供电能源,并且利用太阳能装置融霜耗能少,具有显著的节能效果。

项目的技术路线及预期成果

1、技术路线

图1 工作原理流程图

如图1所示,基于碳纤维材料的太阳能空气源热泵室外机除霜装置由微控制器、温湿度传感器、存储器、太阳能板、恒流充电器、电池组、DC变换器和碳纤维加热膜组成。微控制器首先通过湿度传感器获取当前空气的湿度,通过温度传感器获取碳纤维加热膜的温度,然后从存储器中查询获取在当前的温湿度条件下,碳纤维加热膜加热功率,最后控制DC变换器输出电流,控制碳纤维膜的加热功率,以达到高效除霜的目的。同时,为了充分利用太阳能,该装置采用恒流充电器对电池组进行充电。该装置充分利用覆霜规律和太阳能,达到高效除霜的目的。

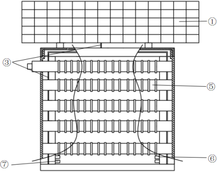
图2太阳能空气源热泵除霜装置内部示意图

图3太阳能空气源热泵除霜装置放大示意图

①太阳能光伏电池板;②储能装置;③导线;④控制盒;⑤碳纤维加热膜;

⑥温度传感器;⑦湿度传感器

年度目标和工作内容(分年度写)

1、2018年3月,查阅资料对除霜装置的可行性进行分析及论证,并确定实验方案;

2、2018年4月,利用Solidworks软件空气源热泵室外机除霜装置的结构进行设计,并做出三维模型图;

3、2018年5月,利用单片机设计空气源热泵室外机除霜装置自动控制部分的电路图;

4、2018年6月—7月,搭建空气源热泵室外机除霜实验系统;

5、2018年8月—9月,进行实验研究,并且测得除霜的相关数据,验证该方法的合理性并测试产品的实际效果,并对设备稳定性进行完善优化;
    6、2018年10月,对整个实验项目过程中的实验测量参数、实验处理数据、实验分析结果等进行整合分析,并完成结题报告。

指导教师意见

空调热泵的冷凝器冬季结霜问题一直是影响热泵正常舒适运行的一个主要问题。该项目的研究成果将具有较大的使用价值,并且市场前景好。项目研究内容明确,研究思路清晰可行,建议立项。

 

签字:                   日期: